Krieger Specialty Products
Forced Entry 5 & Bullet 8
Forced Entry 5 & Bullet 8

5 Minutes
Forced Entry
AK-47 Rifle
Shots
UL 752 Level 8
Bullet Resistance
Krieger’s industry-leading forced entry (FE) door
with a bullet rating tested to the new SD-STD-01.01 Forced Entry and Ballistic Resistance Standard
for the 5-minute, 2-person attack level.

See our 15-minute FE model.

The UL 752 Level 8 bullet rating means the door can stop up to 5 shots from a 7.62 mm high-powered rifle.
Model: FE5-BR8-Single
Details
Tests and Certifications
  • Successfully tested and rated to 5 minutes
    per SD-STD-01.01 Revision G. The hinge edge
    was tested up to 30 minutes, and the rest of the door assembly resisted laboratory attack efforts for up to 75 minutes.
  • UL 752 Level 8 bullet rating can withstand 5 impacts of 7.62 NATO (.308 150 grain) rifle ammunition shot at 3025 maximum FPS.
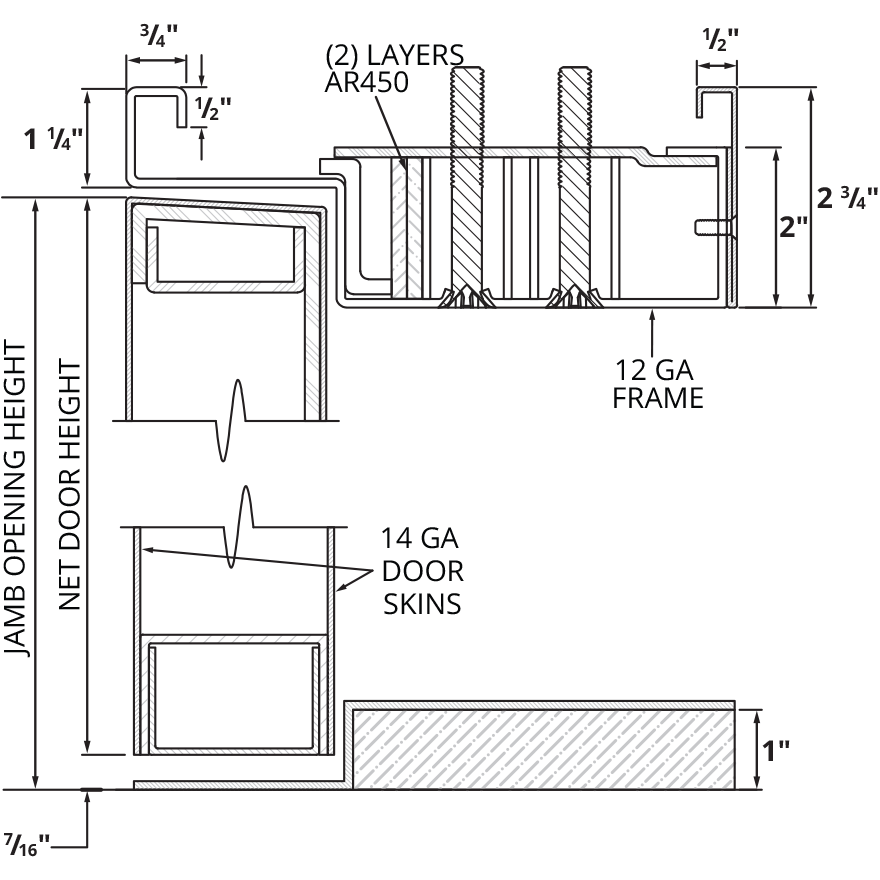
Door and Frame Construction
  • 12-gauge ASTM A1008 frame comes standard with a factory-welded, pry-resistant threshold; 12-gauge ASTM A1008 removable mullion comes standard with armor core.
  • Option for ½" thick threshold is available.
  • 14-gauge door skins come standard to form
    a 2 ½" thick armor-core door panel with robust internal reinforcements and a surface-mounted steel security astragal.
Door Sizes
  • Krieger can design and manufacture FE hybrid doors in standard and custom sizes, including oversized doors.
Fire Labels and Positive Pressure
  • Smoke Labels: Up to 20 minutes
Hardware
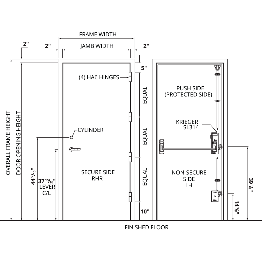
  • Krieger SL314 self-latching, multipoint exit
    device combines security with easy access. Complies with NFPA 101-Life Safety Code and closes on its own for added security.
  • SL315 option is available for an emergency lever configuration.
  • HA6 hinges are designed to support heavy loading and have been tested to over 1 million cycles.
Security
  • Reverse-handed assemblies are recommended for maximum security.
Finishes
  • Krieger’s custom finish options include prime painted, wood veneer, stainless steel, specialty finishes, and more—all perfectly matched to complement your project.
Door Handing
Reverse handing is required on FE models to ensure the door conforms to the standard.
  • Double doors must have a removable mullion.
  • If your project requires regular handing, contact us to discuss your options, as regular handing will not achieve
    the desired rating.
Left Hand
(LH)
Right Hand
(RH)
Left Hand Reverse
(LHR)
Right Hand Reverse
(RHR)
Optional Add-Ons
Specialized Hybrid Performance
Krieger’s FE hybrid doors can be configured with optional add-on features
and different ratings to meet your specific performance needs.
  • Acoustical & SCIF
    Add sound rating up to STC 55 and SCIF Sound Groups 3 and 4.
  • Bullet & Forced Entry
    Enhance door security with an ASTM F476 Grade 40 label.
  • Blast & Pressure
    UFC 4-010-01 and UFC 3-340-02 certifications are available.
  • Radio Frequency
    Get RF shielding of 40 dB or 60 dB for TEMPEST facilities.
  • Tornado & Hurricane
    Can comply with FEMA P-361 (tornado) or FEMA P-320 (hurricane).
Documents and Downloads
NAAMM/HMMA Forced Entry Specifications
PDF
Cut Sheet
Forced Entry 5 & Bullet 8
PDF
Premier Custom Finishes
Our full range of custom finish options includes prime painted, wood veneer, stainless steel, specialty finishes, and more—all perfectly matched to complement your project.
Fill out our online form to request a quote and a Krieger Sales Representative will follow up with you.